

Wall-mounting model for private sauna cabins. Thanks to its elegant, curved shape die-cast aluminium top, stainless steel inner shell and outer shell in anthracite pearl effect finish, EOS ThermoTec W heaters offer a contemporary stylish design for modern sauna cabins.
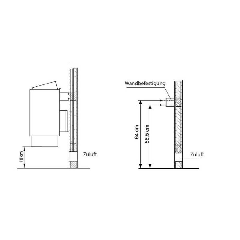
Rock store made of stainless steel with adjustable volume. Terminal box at the rear.
Rock store fits up to 18 kg stones.
Optional: Essence tray set, herbs bowl set, herbs bowl with wave-shaped holder